
14' × 24'
Floor Plan

Available in Maple Ridge, BC
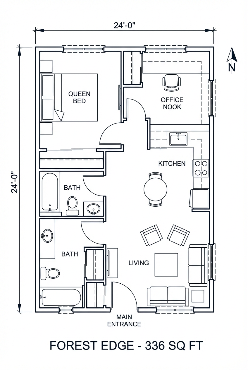
Forest Edge
BC Off-Grid Living
$109,900CAD
Designed for BC's off-grid pioneers—from Sunshine Coast homesteaders to Cariboo cabin dwellers.
336
Square Feet
14' × 24'
Dimensions
Mono-Pitch
Roof Style
2 days
Delivery to Maple Ridge
Ideal For
Off-Grid HomeEco RetreatNet-Zero LivingForest CabinSustainable ADU
Delivery to Maple Ridge
Distance
50km
Delivery Time
2 days
Installation Team
Fraser Valley Team
Build Time
8-12 weeks
Similar Cabins for Maple Ridge
Ready to Order the Forest Edge?
Contact us today for a detailed quote including delivery and installation to Maple Ridge.
Request Quote
